本工作室拥有先进的设备、高素质员工、雄厚的技术力量,我们的经营理念是:专业,安全,诚信,节省用钢量,让您的工程设计方案赢在起跑线上小 百 姓 网。
我们与国内多家钢铁设计研究院有着密切的业务往来, 主要经营以下业务:
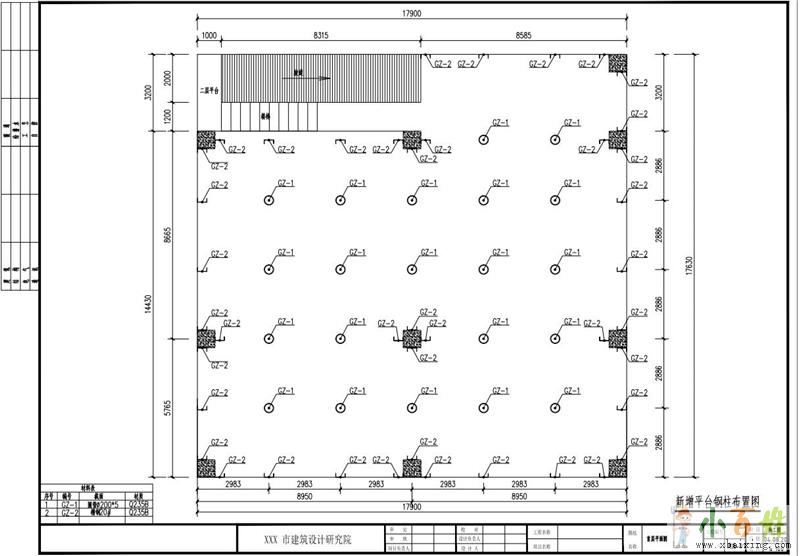
钢结构部分:轻钢结构设计、重钢结构设计、框架结构设计、网架结构设计、桁架结构设计、钢结构蓝图优化、钢结构的任意结构设计、钢结构详图分解、广告牌钢结构设计,出蓝图,盖章;
幕墙部分:玻璃幕墙设计、石材幕墙设计、铝板幕墙设计、建筑幕墙下料图、建筑幕墙投标方案图;
预算部分:建筑预算、钢结构预算、定额预算、报价、广联达套项;
效果图部分:建筑效果图设计、景观效果图、鸟瞰效果图、工装效果图、家装效果图小.百.姓.网。
除了以上部分,本工作室还承接各种有关钢结构的设计要求来源www.xbaixing.com。
本工作室本着“求实创新、将科技成果迅速转化为生产力”的经营宗旨,坚持走着“以科研促生产、以生产养科研”的道路,努力实现公司“为工程师搭建舞台、为工程专家架设桥梁、为顾客增创价值、为社会创造效益”的核心价值小.百.姓.网。为更好配合客户设计厂房的思路及完善施工中可能产生的问题,我们特聘请分别来自国家设计院和大型钢结构生产企业并且从事钢结构技术工作多年,有着丰富的钢结构设计专业知识和详图深化经验,兼顾丰富的现场实际施工经验的工程技术员原文www.xbaixing.com。
我们相信,在钢结构领域各位领导,专家、同仁的大力支持下,我们一定能做出更好、更先进的钢结构设计,为社会提供更新颖、更美观、更安全、更经济可靠的钢结构建筑小_百_姓_网。
为更好服务各位客户,我们还承诺:先免费做方案图,方案图得到甲方认可后,再做详细施工图,且只要是我们做的图纸,我们都免费提供图纸中小毛病的修改www.xbaixing.com小百姓网。
欢迎广大企业、用户和消费者和我们联系,我们将本将为用户提供优质的服务为宗旨,竭诚为您服务小+百+姓+网。

主要从事:化粪池清理18809806092抽污水,抽泥浆、工业管道安装改造、打捞、市政管道清淤、隔油池维修清理。污水清理主要指化粪池、厕所(尤其是无市政管网的老城区,小胡同的厕所粪便)通过专用粪便清运

清理化粪池/隔油池清理-排污管道清淤高压清洗

服务简介1、马桶:专业疏通各种型号马桶13694186069(抹布塑料)等各种软硬物质所造成的堵塞。2、地漏:专业疏通各种v型、S型拐弯的地漏,(因为装修掉进水泥、沙子或头发等种原因所造成的堵塞)。3

沈阳专业抽粪,13694186069清理化粪池,化粪池清理,清掏化粪池,化粪池清掏,清掏沉淀池,清掏隔油池,人工化粪池清底,管道清洗,高压清洗污水管道,清洗下水道,改装上下水管。化粪池清理、砖砌化粪池

大型小型高压清洗车清洗各种因动植物油脂、15040356635粪便等粘稠物、淤泥和垃圾流入造成的管道堵塞。高压清洗各类上下水管道、工业用水管道、单位、学校、工矿企业、市政、乡镇及居民区排污管道、雨水管

沈阳专业抽粪及清理化粪池化粪池清理、砖砌化粪池、化粪池清掏、隔油池清理、抽粪、化粪池、钢筋、砼化粪池、化粪池设计、玻璃钢化粪池、不锈钢化粪池、隔油池。公司备有解放东风4.5吨抽车

详细信息1.高压疏通清洗污水管道(18809806092)市政管道疏通清洗、化工管道清洗、下水道防汛清掏2.化粪池抽粪、化油池清掏、各种沉淀池处理公司拥有抽粪车多辆和高压水射流清洗疏通车多辆、可同时外

沈阳浑南新区郎云街专业化粪池清掏吸污环卫抽下水井隔油池清理电话一、高压水射流清洗部136941860691.高压疏通管高、压清洗管道;采用大型进口超高压水射流清洗设备及专用喷头,靠高速水流,切割击碎结

公司服务项目有:超高压管道疏通清洁、13694186069大型疏通机卷扬机、疏通管道改装、工业管道清洁、市政管道清洁、自来水管道清洁、水管高压清洁、酒店管道清洁、清理化粪池、大型工业管道清洁、隔油池处

沈阳专业高压清洗车疏通管道:13694186069高压清洗工程车疏通清洗各种管道及各种疑难污水管道、市政管线、居民楼房所有分管、立管、主管管线。沈阳专业化粪池清理:清理化粪池、隔油池、污泥池、下水井里

掏厕所旱厕清理 抽化粪池下水井排污管道疏通清理

服务简介专业承接高压水射流清洗管道13694186069、清理化粪池、管道疏通、??管道检测、管道查漏、管道维修等业务。一、管道清洗高压清洗各类上下水管道、工业用水管道、单位、学校、企业及居民区排污管

服务简介1、专业化粪池清理清理化粪池13694186069专业吸粪车清理化粪池(小区,家庭,市政,单位,机关,外企,学校,诚邀物业合作)。2.环卫抽粪:专业的抽粪设备,本公司备有各种大功率5吨8吨抽粪

详细信息本公司配有抽粪车18809806092专业清理化粪池;吸污车,专业清理隔油池、污水处理池、工业沉淀池、工地泥浆沉淀,市政管网深井等。公司配有抽粪车,专业清理化粪池;吸污车,专业清理隔油池、污水

公司有营业执照,13694186069常年承包,定期护理,专门从事高压清洗管道抽粪,抽污水井、抽化粪池、抽隔油池、清理化粪池,清掏化粪池,地下室排污池等定期护理、清理、清运服务,本公司诚邀与物业、

一、污水池清理部:15040356635吸污车清理清运(化粪池,污水池,沉淀池,生化池,氧化池,沉砂池,工业废水池)二、管道清洗疏通部:大型高压管道疏通清洗车,清洗(管渠,市政管道,污水管道,雨水

1.用铁钩打开化粪池的盖板,15040356635再用长竹杆(8m)搅散化粪池内杂物结块层。2.把吸粪车开到工作现场,套好吸粪胶管(5m长,备3条)放入化粪池内。3.启动吸粪车的开关,吸出粪便直至化粪

沈阳专业高压清洗,13694186069多年的化粪池清洗、化粪池人工清掏经验是安全的重要保障,我们拥有先进的探测设备和各种吸污运输车辆能够适合在多种环境下作业,一整套的清掏化粪池清洗服务流程保证了工作

沈阳专业高压清洗管道:高压清洗各类上下水管道、工业用水管道、单位、学校、企业及居民区排污管道、雨水管、煤气管道、烟道等。高压清洗饭店、宾馆下水管道(时间一长管道内壁附有大量的油块、杂物、及易堵塞,一般

服务简介1,管道清洗—13342429284备有大中高压清洗车--高压清洗各种上下水管道及各种疑难污水管道、市政管线、居民楼房所有分管、立管、主管管线2,清掏——清理化粪池、隔油池、马葫芦及下水井里出

博澜,12年历程的品牌全案服务商 您好!我们是一家以品牌全案服务为核心的设计机构。专业为企业提供从品牌定位品牌设计、LOGO设计、包装设计、画册设计、海报设计、吉祥物设计、空间导示设计、网站设计宣传片...
君艺制景承接各地古建筑、假山水系、雕塑、壁画彩绘、各种仿真树、仿古城墙、主题生态园、度假村、游乐园园林古建景观工程,装饰工程,主要项目有一,承接各种仿真假树设计施工。二,承接各种假山,塑石景观石,打造...
炫景效果图设计有限公司为客户提供优质产品,舒适的价格,持续与客户共赢。因为我们知道,不讲诚信的公司永远做不大。优质服务加实惠价格赢得了众多客户的信赖和好评。从创立之处到现在发展到仅设计部就有一百多名专...
公司设计致力于为您的企业提供与时俱进的商业设计,为您的品牌提供整体品牌形象设计和推广,从前期的市场调研站在消费者的立场出发而推导出适合企业的设计服务,始终认为真正的客户是消费者。而我们是您的并肩战友。...
炫景效果图设计有限公司成立于2015年,是一家专业的效果图设计服务公司,主要从事室内外效果图与施工图的设计与制作。从创立以来,炫景效果图设计公司一直秉承以“优质产品、舒适价格”,持续与客户共赢的价值观...
炫景效果图设计有限公司是一家专业从事效果图设计的公司,有着10年效果图制作经验,拥有原创设计团队,效果图建模团队,效果图渲染团队,效果图后期制作团队,为您提供“一站式”尊贵专属服务。 主营业务: (一...
君艺制景是专业从事古典山水园林、生态园景观等艺术景观工程设计与施工的专业化公司,主营:古建筑、园林假山、塑石假山、仿真树、壁画彩绘、生态园。经营范围:各种塑石假山制作兼设计;仿真树仿真植物布置;仿古建...
君艺制景是景观园林设计及施工一体的综合园艺景观公司,公司主要业务:古建筑设计与施工、室内外假山设计与施工、园林景观规划设计,景观雕塑造景设计施工,景区景点景观设计施工,公园景观假山施工、生态园假树塑石...

各大平台广告推广投放,找专业的人做专业的事OPPO广告营销平台优势:海量年轻活跃用户超低用户种合度精准触达目标人群OPPO广告营销资源位:应用分发:以软件商店为主推平台,帮助你的应用快速领跑市场。关键...

本工作室拥有先进的设备、高素质员工、雄厚的技术力量,我们的经营理念是:专业,安全,诚信,节省用钢量,让您的工程设计方案赢在起跑线上。...